Key Considerations
The applicant is working with a team of technical and environmental consultants to develop a proposal; we have had regard to the following:
Highways and access
The new homes will be reached from Evesham Road (B439) using a simple T-junction with a dedicated right-turn lane. The current uphill overtaking lane will be replaced by a central island with small refuges. This helps drivers turn safely, manages speeds and stops risky overtaking. The access has been designed to national standards for the 40-mph road, and there is also the option to bring the 30–mph limit further west to cover the junction if the highway authority agrees.
Walking and cycling links will be improved. Along the site frontage the south-side footway on Evesham Road will become a 3 m shared path for people walking and cycling, joining the crossings at the Luddington Road roundabout and the existing paths beside Whittington Way. A matching 3 m path will run up the new access road so people can move easily between the homes and Evesham Road.
We will also look at a new signal-controlled toucan crossing near the roundabout if surveys show it is needed, and there is scope to upgrade the nearby bus stops on Evesham Road with clearer information and, where possible, a shelter. Together these changes will make it easy and safe to walk, cycle or catch the bus into town.
Drainage
We will manage rainwater on site using a single landscaped attenuation basin at the eastern edge of the development. In heavy rain it will hold water temporarily, then release it slowly through a flow-control chamber that limits discharge to about 5 litres per second, which helps to avoid flooding and eases pressure on the public network. Connection to the Severn Trent system will be agreed through their approval and a sewer requisition process. The basin design includes an inlet siltation bay to improve water quality before outfall. Planting and open space around the basin will add to the green feel of the scheme.
As part of the strategy, we will also provide land drainage to better manage any overland flow routes across the site. Final details will be confirmed with the lead local flood authority and Severn Trent at the detailed design stage.
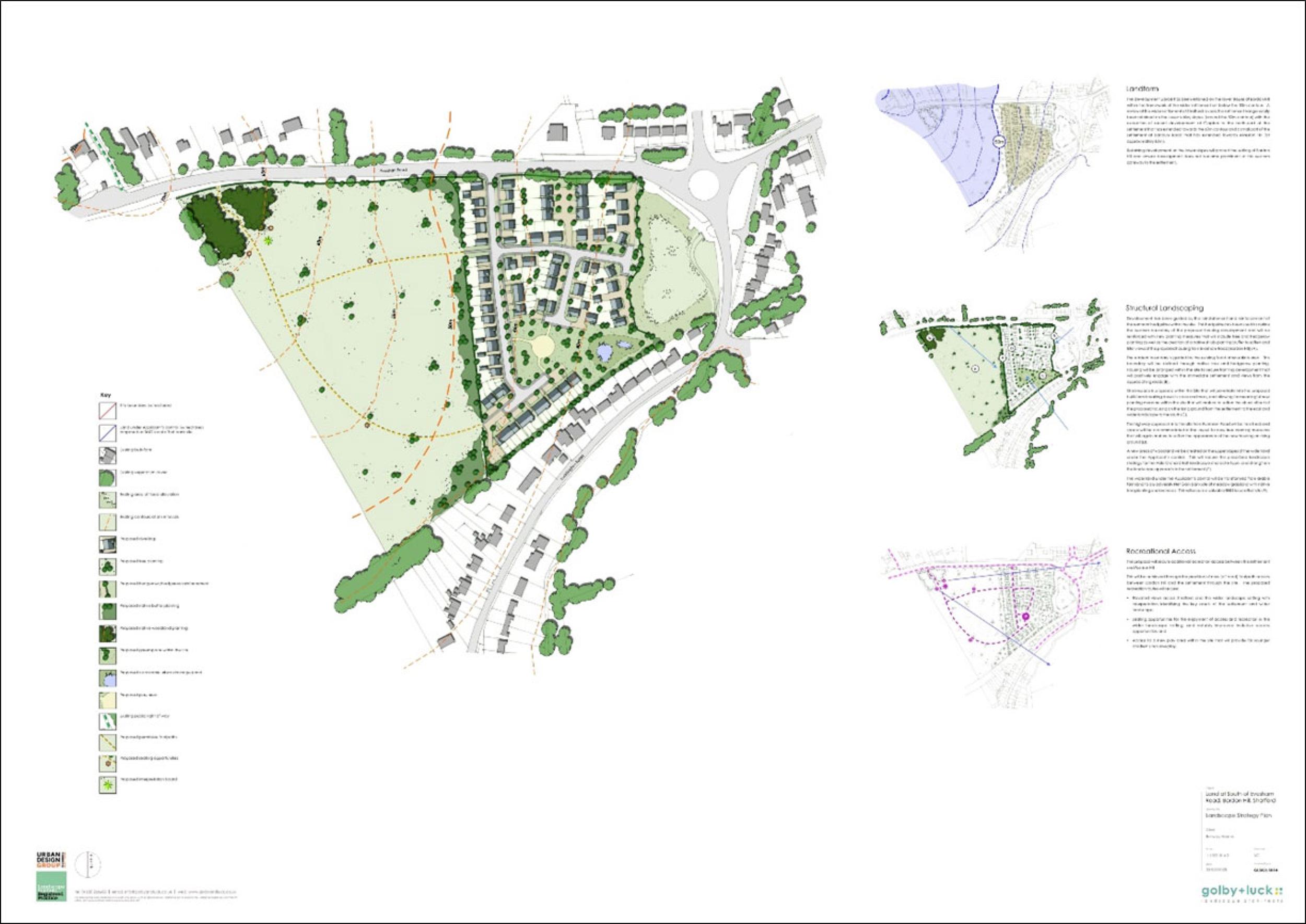
Landscape and visual impact
The site already benefits from gentle slopes, hedgerows and mature trees that help to screen views. It sits on the lower slopes of Bordon Hill, generally below the 50-metre contour, which reduces how visible new homes would be from the surrounding area. There are no public rights of way through the field at present, but there is a good network nearby.
Our proposals build on this setting by:
Together, these measures will help the development sit comfortably in the landscape, reduce its visibility, and create attractive places to walk, play and relax for both new and existing residents.
Heritage
There are no listed buildings, conservation areas, or other protected heritage designations on the site. Within about 1 km there are designated assets, including Shottery Conservation Area and Anne Hathaway’s Cottage, but these are screened from the site by landform, trees, and existing buildings, so the site does not contribute to their setting. We will continue to design the scheme so it fits the local character, and if any archaeology is found during works it can be properly investigated in line with normal planning practice.
Ecology & Trees
We have completed or scheduled a full suite of wildlife surveys, including for birds, bats, great crested newts and other protected species. The site is mainly an arable field with hedgerows and trees around the edges. Hedgerows are a Habitat of Principal Importance in national policy, so we will protect and strengthen them and add new native planting.
Based on the survey work and the landscape-led design, we will:
In addition to on-site planting, land under the applicant’s control to the west will be turned from arable use into a Biodiversity Net Gain “bank,” with meadow grassland, new woodland and orchard planting. This will increase the range of habitats locally and provide new permissive paths with places to stop and enjoy views. Together, these measures allow the project to deliver a measurable Biodiversity Net Gain, meaning the site will support more nature after development than it does today.




